Residential kaleidoscope
Contribution to a co-operative housing project with approx. 100 flats in Munich-Neufreimann.
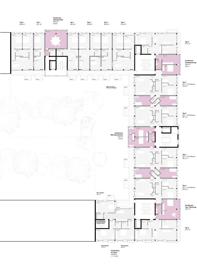
The proposed structure allows to adapt and extend the flats at a later point in time, using so-called `switch rooms`, while communal areas promote social interaction. The residential building acts like a living organism that adapts to the changing requirements its residents. This creates an inclusive environment in which diversity and collective interaction are encouraged.
Collaboration with TILLO/KAA












